製品情報
高速道路
施工スピードと耐久性の向上を図ったプレキャスト壁高欄
クイック壁高欄
- 認定・規格・準拠図書等
-
- NEXCO設計要領第二集 橋梁保全編
- NEXCO構造物施工管理要領
- 防護柵の設置基準・同解説
- 特別仕様
-
- 現場打ち→プレキャスト対応
- 取扱地域
-
- 北海道
- 東北
- 関東
- 中部
- 北陸
- 近畿
- 中国
- 四国
- 九州
- 沖縄
※取扱が記載されていない地域については、担当営業所にご確認ください。
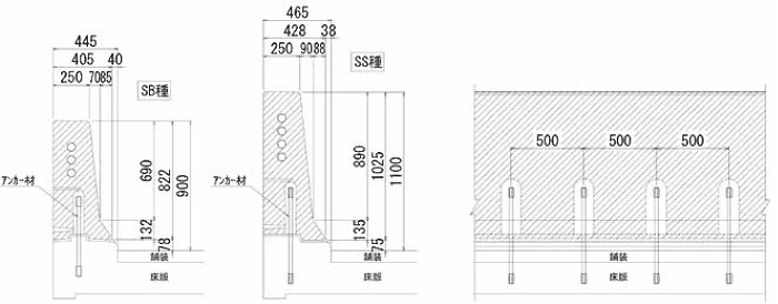
形状寸法およびアンカー材の標準配置

※オプションで、通信管路、遮音壁又は落下物防止柵アンカーボルト、剥落防止対策も対応可能です。
※右図は中間ブロックのアンカー材標準配置です。端部ブロックは端部から1mの範囲に4本配置します。
※製品長につきましてはご相談下さい。
最新お知らせ
- 2026-04-24 トピックス
- 「MAMORETE(マモリート)」が、東京都港湾局の「新材料・新工法データベース」に掲載
- 2026-04-01 トピックス
- クイック壁高欄に新たにSS種対応型を追加
- 2026-01-13 施工現場紹介
- 施工現場の紹介<壁付円型水路(スコップ型)>
- 2026-01-13 施工現場紹介
- 施工現場の紹介<雨水貯留ボックスカルバート>




